Halsbury Road, Kensington, Liverpool

  • 7
  • 2
  • 1

To Let - £120 PPPW - £520 PCM

Located within the Student Hub of Liverpool this well presented terraced house is offered for rent fully furnished for the academic year. Located in the popular Kensington area, this property has excellent access to public transport to and from the Universities, City Centre and the surrounding areas. Local shops, food outlets and supermarkets are all within walking distance.

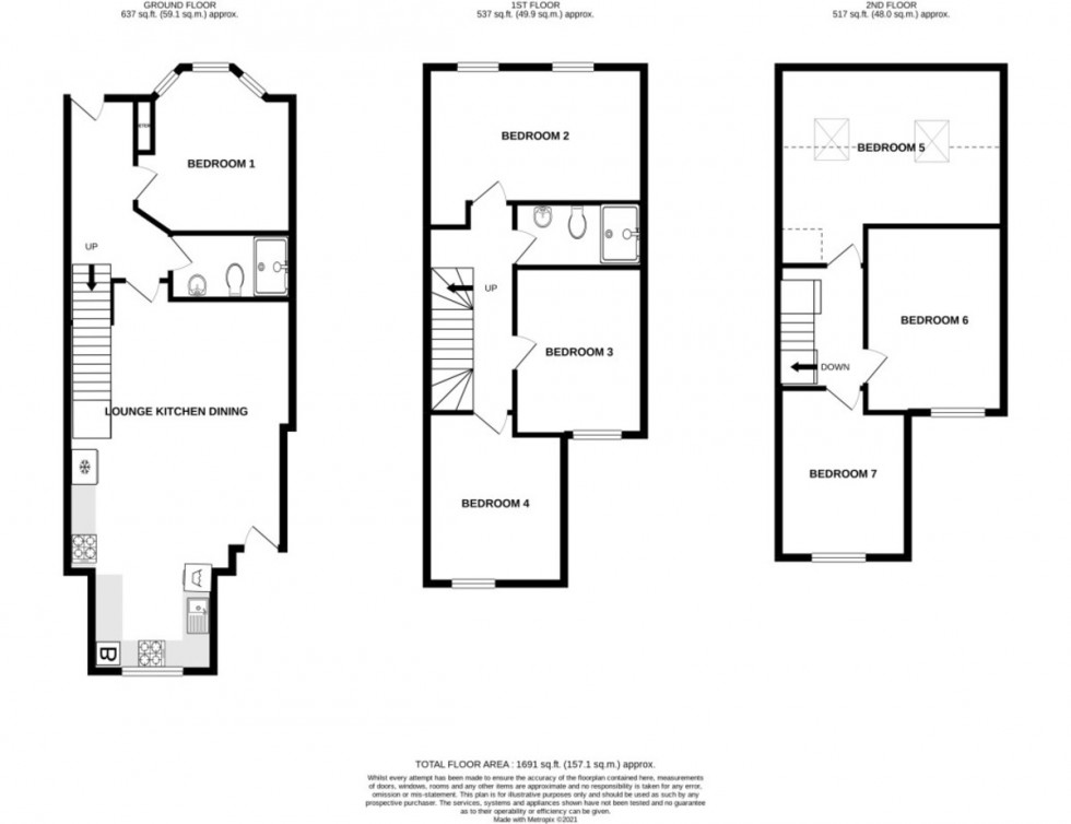
This extremely spacious house is split over three floors. To the ground floor is a spacious lounge/dining area and a fitted kitchen with integrated appliances. The first of the seven bedrooms, equipped with essential furniture and a shower suite are also located on the GF.

To the first floor are a further Three double bedrooms, all equipped with essential furniture and a modern décor and the Second shower suite.

To the second floor are the final Three bedrooms, equipped with essential furniture and and décor.

The property benefits from uPVC double glazing and a yard to the rear of the property. ALL BILLS inclusive package which includes Gas, Electric, Water, Broadband and TV Licence.

Please ask a member of staff for further information regarding securing this house.

How do I calculate weekly rent to monthly rent payments?

To calculate your monthly rent, you can use the following formula:
Weekly Rent x 52 (Weeks) / 12 (Months) = PCM Rent.


Add to Shortlist Remove from Shortlist

Key Features

  • Available 01/07/2026
  • Deposits From £300 pp
  • All Bills Included
  • Students Only
  • Spread Over Three Floors
  • Seven Double Bedrooms
  • Open Plan Lounge and Kitchen
  • Two Separate Shower Suites
  • On Street Parking Available
  • Excellent Transport Links to Uni's & City Centre

CONNECT WITH US

  • LIV Move on Facebook
  • LIV Move on twitter
  • LIV Move on Instagram